Grand bois a

Courchevel la Tania, France
  • Avis 4.75/5
  • Gamme classique
  • Jusqu'à 4 personnes
  • 1 chambre

Points forts, services et équipements

  • Télévision
  • Balcon
  • Lave vaisselle
  • Four micro-ondes
  • Ascenseur
  • 5ème étage
  • Animaux (non acceptés)
  • Linge de lit (non inclus)
  • Serviettes (non inclus)
  • Prestation ménage (non inclus)
  • Ski au pied
  • 150 m. des commerces
  • 150 m. du centre

Description

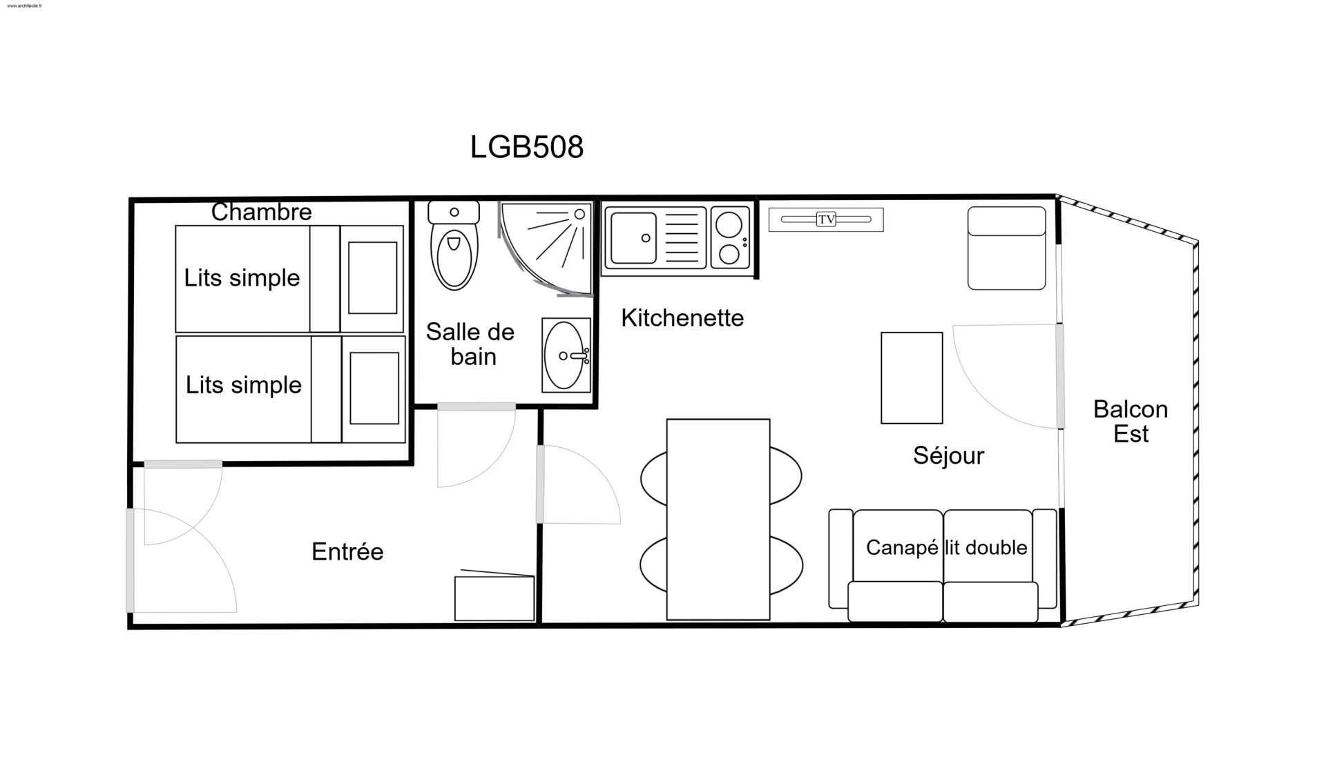
La tania - rÉsidence le grand bois a n°508 - type c1
classement 2*

2 chambres, 4 personnes, 25m², balcon est, 5ème étage

salle de séjour : 1 canapé lit double (140x190cm)
chambre (avec vue sur coursive) : 2 lits simples (80x190cm)
cuisine : combinaison de micro-ondes, réfrigérateur, 4 plaques vitrocéramiques, lave-vaisselle, hotte

aspirante, cafetière filtre Salle de douche avec toilettes TV à écran plat incluse NON-FUMEUR - ANIMAUX NON AUTORISÉS


Capacité maximale 4 personnes | Pas de fête ni de soirée.
Animaux refusés
Référence #140666

Localisation

L'environnement

La résidence le grand bois est idéalement située skis aux pieds dans la conviviale et charmante station de courchevel la tania.
courchevel la tania se trouve au coeur des 3 vallées, vous rejoindrez les domaines skiables de méribel et courchevel en 2 remontées mécaniques.
la résidence est proche du centre de la station, où vous trouverez

des commerces, l'esf, une supérette, des bars et des restaurants.
l'arrêt navette est à 100 mètres, ces bus vous emmènent gratuitement à toutes les niveaux de de la station: courchevel saint bon, courchevel le praz, courchevel village, courchevel moriond et courchevel 1850.

À noter

Règlement
• 30% d'acompte à la réservation
• Solde au plus tard 30 jours avant l'arrivée

L'arrivée / le départ
• Remise des clés entre 17 et 19 heures en agence immobilière
• sortie de l'appartement à 10 heures (au plus tard)

Annulation / modification
• Jusqu'à J-45   Annulation sans retenue
• De J-44 à J- 30   30% du montant total retenu
• De J-29 à J- 15   75% du montant total retenu
• A partir de J-14   100% du montant total retenu

Commentaires des vacanciers

  • Propreté
    4
  • Situation
    5
  • Tranquillité
    5
  • Qualité-prix
    5
  • Willhil459  Mar. 2024 entre amis

    Rien à signaler

Des questions ? Nous avons les réponses.

Réservation, arrivée, paiement... consultez notre centre d'aide pour trouver les éléments de réponses recherchés.

Voir toutes les questions
Total
547.00€
soit 547€/p.
Réserver
Sa. 27/06 - Sa. 04/07
547.00€
soit 547€/p.
Réserver

À régler sur place

- Taxe de séjour par personne (+18 ans) et par nuit
- Caution 350 € (CB ou chèque détruit au plus tard 14 jours après votre départ)

  • 30 000 biens sélectionnés
  • Pas de frais de dossier
  • Carnet de voyage pour votre arrivée
  • Garantie départ de l'APST
Sa. 27/06 - Sa. 04/07
547.00€
soit 547€/p.
Réserver

Offres à proximité

Ils partagent leurs vacances sur instagram

lesstations