Chalets little
-
Gamme classique
- Jusqu'à 12 personnes
- 5 chambres
- Ménage de fin de séjour
Ferme colline est un splendide duplex de 5 chambres et 4 salles d'eau d'une superficie de 167m² au 1er et 2ème étage d'un chalet idéalement placé dans le centre de morzine. proche de toutes commodités, à deux pas des restaurants, commerces, bars et à 350m des pistes et remontées mécaniques. l'appartement peut accueillir 10 à 12
personnes de se compose de :
- hall d'entrée avec rangement
- vaste pièce à vivre avec hauteurs sous plafond, coin salon avec poêle à bois, télévision, accès au grand balcon avec vue sur les montagnes, cuisine ouverte entièrement équipée et coin repas
- un wc séparé
- une buanderie avec lave-linge
- chambre 1 avec deux lits simples ou un lit double, salle de douche en-suite avec wc
- chambre 2 avec deux lits simples ou un lit double, télévision, coin bureau, un lit superposé, salle de bain en suite avec douche, baignoire et wc
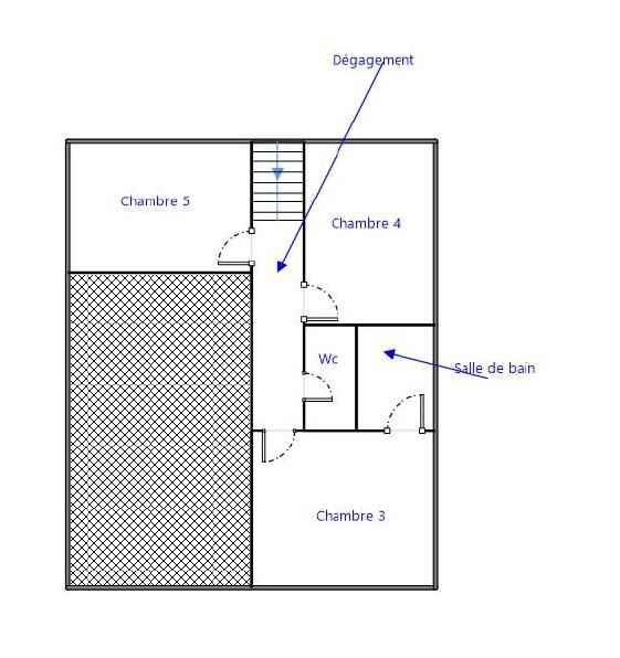
A l'étage :
- chambre 3 : deux lits simples ou un lit double, salle de douche en-suite avec wc
- chambre 4: deux lits simples ou un lit double
- salle de douche avec wc
- chambre 5: un lit double
Un garage privatif pour une voiture (branchement pour véhicule électrique)
Casier à skis et sèche-chaussures
Wifi
Dépôt de garantie et taxe de séjour à régler avant l'arrivée
Animaux non admis
Lits faits à l'arrivée selon votre convenance, ménage de fin de séjour inclus
• Equipements : adapté aux enfants, Adapté aux familles, Balcon, Casier à ski, Cheminée, Cintres, Détecteur de fumée, Entrée privée, fer à repasser, Four, Garage, Lave vaisselle, Lave-linge, Linge de lit, Machine à café, Micro ondes, Produits de base, Réfrigérateur/Congélateur, Sèche-chaussures chauffant, sèche-cheveux, TV, WIFI
• Inconvénient :
Côté rue
• Configuration :
- Entrée 5.4m²
- Salon/sejour/cuisine 76.9m²
- Wc indépendant 1.8m²
- Buanderie 5.3m²
- Chambre 1 9.8m²
- Chambre 2 22.1m²
- Salle de bain 1 3.4m²
- Salle de bain 2 6m²
- Chambre 3 5.9m²
- Chambre 4 6.8m²
- Chambre 5 6.6m²
- Wc indépendant 2.7m²
- Salle de bain 3 2.7m²
Capacité maximale 12 personnes | Pas de fête ni de soirée.
Animaux refusés
Référence #187749
Règlement
• 30% d'acompte à la réservation
• Solde au plus tard 30 jours avant l'arrivée
L'arrivée / le départ
• Remise des clés à la location sur rendez vous entre 17 et 18h
• sortie de la location à 10 heures (au plus tard)
Annulation / modification
• Jusqu'à J-45
Annulation sans retenue
• De J-44 à J- 30
30% du montant total retenu
• De J-29 à J- 15
75% du montant total retenu
• A partir de J-14
100% du montant total retenu
Réservation, arrivée, paiement... consultez notre centre d'aide pour trouver les éléments de réponses recherchés.
Il n'y a pas de dossier à déposer ou d'inscription à effectuer : il suffit de réserver un séjour en...
Vous pouvez bénéficier de l'aide financière qu'une seule fois par année civile (une fois en 2025, une fois en 2026...)...
L'aide Départ 18:25 est compatible uniquement avec les offres proposées sur lesstations.com. Elle se présente sous forme de déduction financière...
Nous acceptons les règlements par carte bancaire, chèques vacances papiers et chèques vacances Connect.
Vous pouvez tout à fait utiliser des cartes différentes pour le paiement de l'acompte et du solde. Il est possible...
À régler sur place
- Taxe de séjour par personne (+18 ans) et par nuit
- Caution 2000 € (pré-autorisation CB)
Morzine, France
04-11 avr.
6 personnes
soit 255€ /p.
Morzine, France
04-11 avr.
6 personnes
soit 215€ /p.
Morzine, France
30 mai.-06 juin.
16 personnes
soit 380€ /p.
Morzine, France
22-29 août.
6 personnes
soit 218€ /p.