Gentianes
-
Gamme classique
- Jusqu'à 5 personnes
- 1 chambre
Partager cette annonce
Points forts, services et équipements
- Télévision
- Lave vaisselle
- Four micro-ondes
- 1er étage
- Animaux (non acceptés)
- 280 m. des pistes
- 620 m. des commerces
- 620 m. du centre
Description
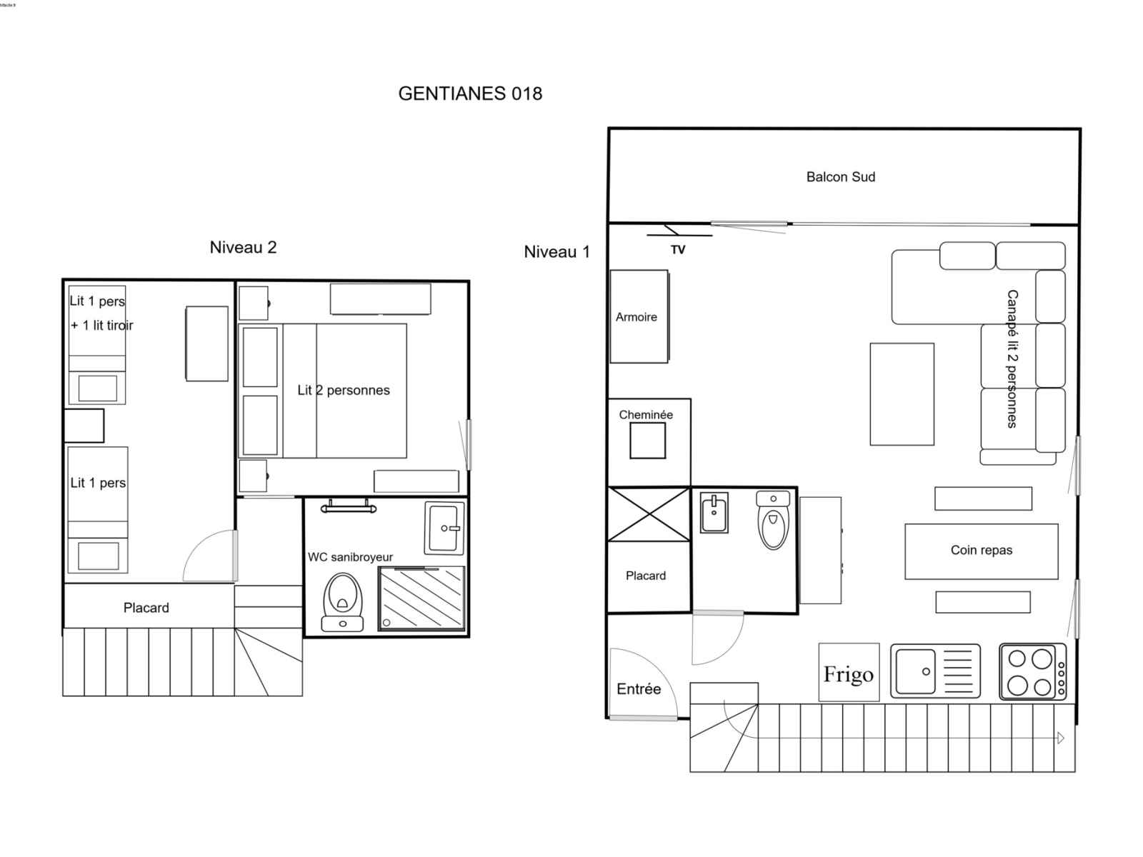
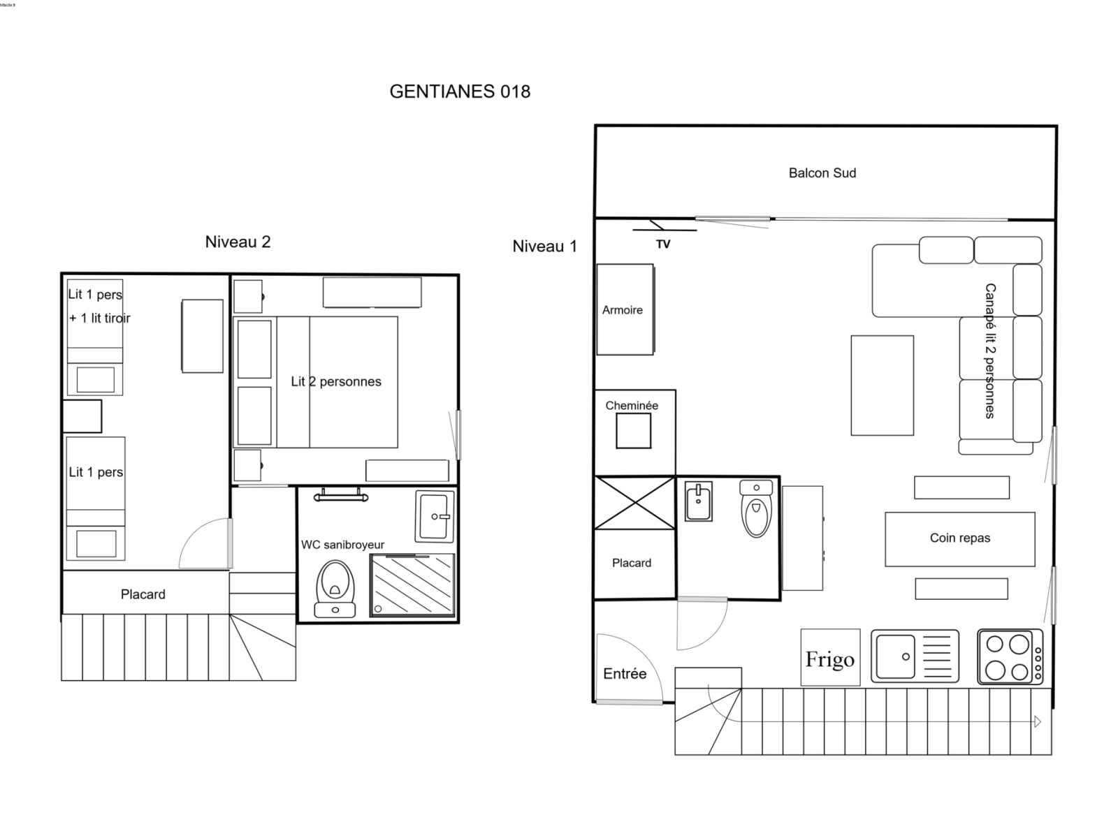
Residence gentianes n°18 - type e1
classement 2* pour 4 personnes
3 pièces en duplex, 5 personnes, 41m², balcon sud,
1er etage, sans ascenseur
séjour : 1 canapé
kitchenette : four combiné micro-ondes, frigidaire, lave vaisselle, 4 plaques électriques, cafetière nespresso, grille-pain, bouilloire
toilettes séparées avec lave
mains Etage : Chambre soupentée avec fenêtre : 1 lit double (160 x 200) Chambre 2 soupentée avec vélux : 2 lit simples et 1 lit tiroir (90 x 185) Salle de douche avec un WC sanibroyeur Télévision écran plat incluse - CONNEXION WIFI NON-FUMEUR - ANIMAUX INTERDITS
Capacité maximale 5 personnes | Pas de fête ni de soirée.
Animaux refusés
Référence #149491
Localisation
L'environnement
La résidence gentianes est située à 200m des pistes et à 700m du centre commercial du laitelet.
pour accéder aux pistes, il vous suffit de remonter la route en direction de l'immeuble la saulire pour regagner la piste verte de la perdrix qui vous mène au départ principal des remontées mécaniques.
l’accès au quartier du hameau et du
laitelet se fait via le téléporté des chalets, ouvert de 7h20 à 23h30 en libre accès.
À noter
Règlement
• 30% d'acompte à la réservation
• Solde au plus tard 30 jours avant l'arrivée
Des questions ? Nous avons les réponses.
Réservation, arrivée, paiement... consultez notre centre d'aide pour trouver les éléments de réponses recherchés.
-
Comment déposer un dossier avec Départ 18:25 ?
Il n'y a pas de dossier à déposer ou d'inscription à effectuer : il suffit de réserver un séjour en...
-
Combien de fois puis-je bénéficier du dispositif Départ 18:25 ?
Vous pouvez bénéficier de l'aide financière qu'une seule fois par année civile (une fois en 2025, une fois en 2026...)...
-
Comment bénéficier du dispositif Départ 18:25 ?
L'aide Départ 18:25 est compatible uniquement avec les offres proposées sur lesstations.com. Elle se présente sous forme de déduction financière...
-
Quels sont les moyens de paiement acceptés ?
Nous acceptons les règlements par carte bancaire, chèques vacances papiers et chèques vacances Connect.
-
Comment régler à plusieurs ?
Vous pouvez tout à fait utiliser des cartes différentes pour le paiement de l'acompte et du solde. Il est possible...
Offres à proximité
Plein soleil
Méribel Mottaret, France
06-13 déc.
5 personnes
soit 213€ /p.
Grande rosiere
Méribel Mottaret, France
06-13 déc.
4 personnes
soit 200€ /p.
Plattieres
Méribel Mottaret, France
06-13 déc.
4 personnes
soit 266€ /p.
Vanoise
Méribel Mottaret, France
06-13 déc.
6 personnes
soit 224€ /p.