Alpages mottaret b

Méribel Mottaret, France
  • Gamme classique
  • Jusqu'à 6 personnes
  • 2 chambres

Points forts, services et équipements

  • Cheminée
  • Télévision
  • Wifi
  • Balcon
  • Lave vaisselle
  • Four micro-ondes
  • 2ème étage
  • Animaux (non acceptés)
  • Draps (1er jeu) inclus
  • Serviettes (non inclus)
  • Prestation ménage (non inclus)
  • 200 m. des pistes
  • 150 m. des commerces
  • 500 m. du centre

Description

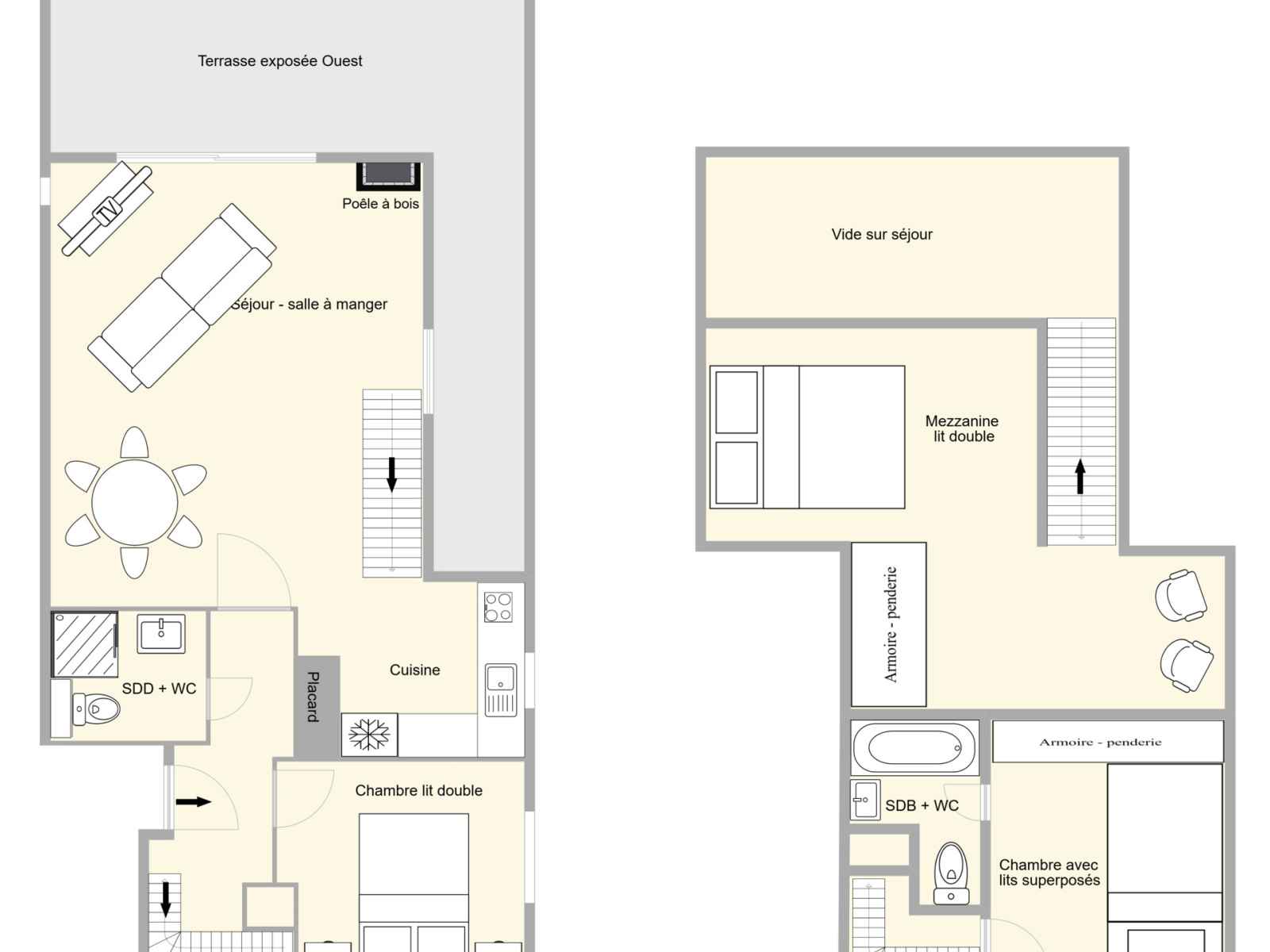
Residence alpages du mottaret b12 - type g2
appartement le bretzel des neiges
classement 3* pour 6 personnes - label meribel

3 pièces duplex avec mezzanine, 6 personnes, 61m², terrasse ouest
2ème etage par escaliers (sans ascenseur)

séjour : 1 canapé (sans couchage) avec 1 cheminée (bois non fournis)
cuisine ouverte sur séjour avec four,

frigidaire, lave-vaisselle, 4 plaques vitrocéramiques, grille pain, cafetière Nespresso, bouilloire Chambre 1 : 1 lit double (140x190cm) Salle de douche avec toilettes Etage : Mezzanine (avec vélux fixe) ouverte sur le séjour avec 1 lit double (140 x 190cm) Chambre 2 (soupentée - avec vélux fixe) : 1ensemble de lits superposés (80 x 190cm) avec une salle de bain et toilettes Accès à la terrasse avec salon de jardin Accès INTERNET GRATUIT - connexion dépendante de l'opérateur, ne peut être garantie NON-FUMEUR - ANIMAUX INTERDITS A NOTER : chauffe-eau individuel (200 litres) offrant un bon confort sous réserve d’une utilisation raisonnable


Capacité maximale 6 personnes | Pas de fête ni de soirée.
Animaux refusés
Référence #187495

Localisation

L'environnement

La résidence les alpages du mottaret b est située côté châtelet, dans un envrironnement calme, à moins de 5mn des pistes et du centre commercial du châtelet. pour rejoindre les pistes, traversez le parking jusqu'aux commerces (environ 200m), monter un escalier et chausser 50m plus loin pour rejoindre ensuite les télécabines.

vous avez la

possibilité de regagner la résidence à ski, par la piste de " l'ours " (selon enneigement).

l'arrêt de navette le plus proche est situé à 150m environ, au pied du centre commercial : arrêt "châtelet".

À noter

Règlement
• 30% d'acompte à la réservation
• Solde au plus tard 30 jours avant l'arrivée

L'arrivée / le départ
• Remise des clés entre 17 et 19 heures en agence immobilière
• sortie de l'appartement à 10 heures (au plus tard)

Annulation / modification
• Jusqu'à J-45   Annulation sans retenue
• De J-44 à J- 30   30% du montant total retenu
• De J-29 à J- 15   75% du montant total retenu
• A partir de J-14   100% du montant total retenu

Des questions ? Nous avons les réponses.

Réservation, arrivée, paiement... consultez notre centre d'aide pour trouver les éléments de réponses recherchés.

Voir toutes les questions
Total
1892.00€
soit 1892€/p.
Réserver
Sa. 14/03 - Sa. 21/03
1892.00€
soit 1892€/p.
Réserver

À régler sur place

- Taxe de séjour par personne (+18 ans) et par nuit
- Caution 500 € (CB ou chèque détruit au plus tard 14 jours après votre départ)

  • 30 000 biens sélectionnés
  • Pas de frais de dossier
  • Carnet de voyage pour votre arrivée
  • Garantie départ de l'APST
Sa. 14/03 - Sa. 21/03
1892.00€
soit 1892€/p.
Réserver

Offres à proximité

Ils partagent leurs vacances sur instagram

lesstations