Creux de l ours d
-
Gamme classique
- Jusqu'à 6 personnes
- 1 chambre
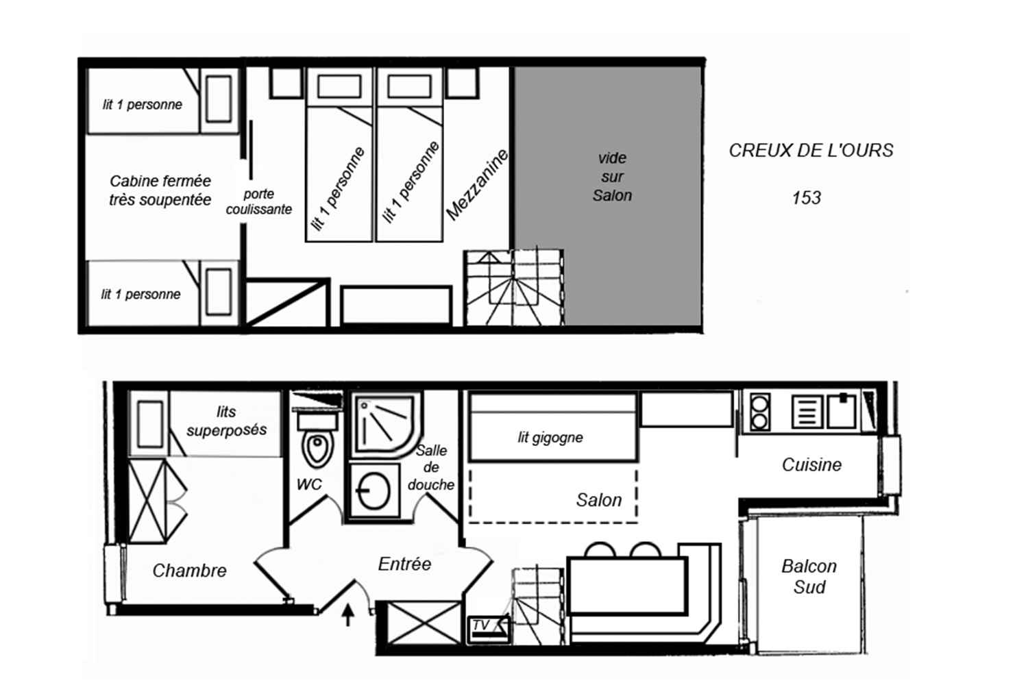
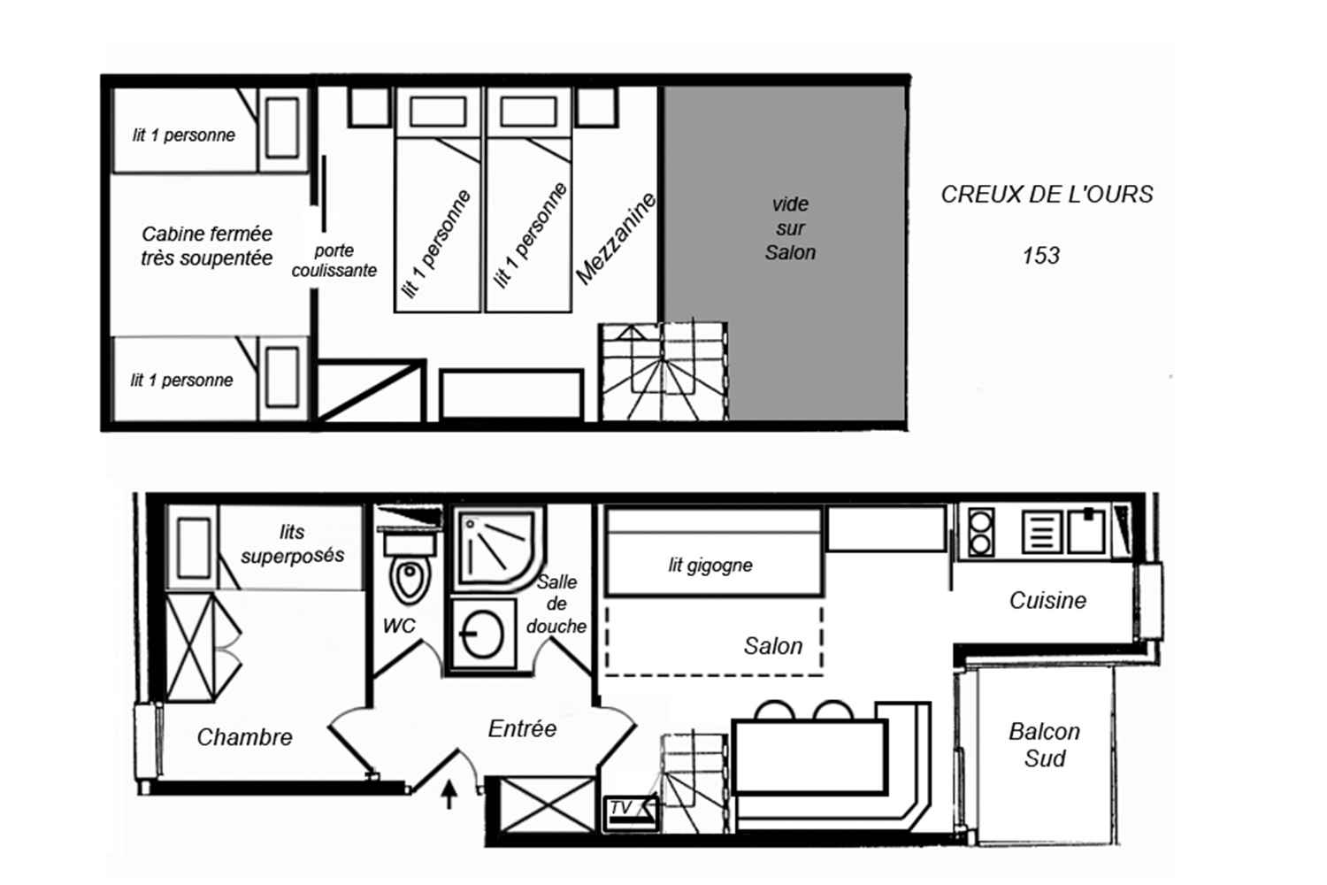
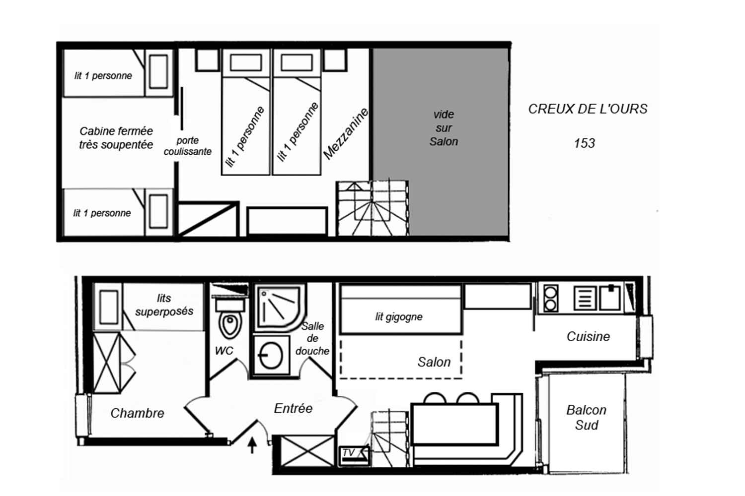
Residence le creux de l'ours d 153 - type e1
classement 2* pour 4 personnes
appartement de charme
2 pièces mezzanine (soupentée), 6 personnes, 34m², balcon sud, 3ème etage
chambre : 1 ensemble de lits superposés (80x190)
séjour : 1 ensemble de lits gigognes (80x190)
kitchenette séparée par porte coulissante : four combiné
micro-ondes, frigidaire, lave-vaisselle, 2 plaques vitrocéramiques, hotte, bouillloire électrique, grille-pain, cafetière électrique, cafetière Nespresso Salle de bain avec cabine de douche hydromassante - Toilettes séparées Mezzanine (avec vélux - très soupentée) ouverte sur le séjour : 2 lits 1 personne Cabine soupentée pour couchage additionnel avec 2 lits 1 personne (avec vélux - tous les mètres carrés sont inférieurs à 1,80m) Télévision écran plat incluse - NON-FUMEUR - ANIMAUX ACCEPTES Connexion Wi-Fi gratuite dépendante de la résidence - connexion non garantie - débit limité L’appartement vous laisse le choix de l’occupation de 6 des 8 couchages avec en particulier la possibilité de préserver l’espace salon en tant que pièce de vie– capacité et équipement maximum 6 personnes
Capacité maximale 6 personnes | Pas de fête ni de soirée.
Référence #127219
La résidence creux de l'ours se situe en plein cœur du hameau, au laitelet. elle est située aux pieds des pistes et des commerces.
pour rejoindre les pistes depuis l'appartement, rendez-vous aux casiers à ski de la résidence, puis traversez une place pour accéder à la piste verte "perdrix" qui mène au départ principal des remontées
mécaniques.
l’accès au quartier du hameau et du laitelet se fait via le téléporté des chalets, ouvert de 7h20 à 23h30 en libre accès.
Règlement
• 30% d'acompte à la réservation
• Solde au plus tard 30 jours avant l'arrivée
L'arrivée / le départ
• Remise des clés entre 17 et 19 heures en agence immobilière
• sortie de l'appartement à 10 heures (au plus tard)
Annulation / modification
• Jusqu'à J-45
Annulation sans retenue
• De J-44 à J- 30
30% du montant total retenu
• De J-29 à J- 15
75% du montant total retenu
• A partir de J-14
100% du montant total retenu
Réservation, arrivée, paiement... consultez notre centre d'aide pour trouver les éléments de réponses recherchés.
Il n'y a pas de dossier à déposer ou d'inscription à effectuer : il suffit de réserver un séjour en...
Vous pouvez bénéficier de l'aide financière qu'une seule fois par année civile (une fois en 2025, une fois en 2026...)...
L'aide Départ 18:25 est compatible uniquement avec les offres proposées sur lesstations.com. Elle se présente sous forme de déduction financière...
Nous acceptons les règlements par carte bancaire, chèques vacances papiers et chèques vacances Connect.
Vous pouvez tout à fait utiliser des cartes différentes pour le paiement de l'acompte et du solde. Il est possible...
À régler sur place
- Taxe de séjour par personne (+18 ans) et par nuit
- Caution 500 € (CB ou chèque détruit au plus tard 14 jours après votre départ)
Méribel Mottaret, France
11-18 avr.
4 personnes
soit 200€ /p.
Méribel Mottaret, France
11-18 avr.
6 personnes
soit 188€ /p.
Méribel Mottaret, France
11-18 avr.
8 personnes
soit 543€ /p.
Méribel Mottaret, France
11-18 avr.
4 personnes
soit 182€ /p.